Previous
Next
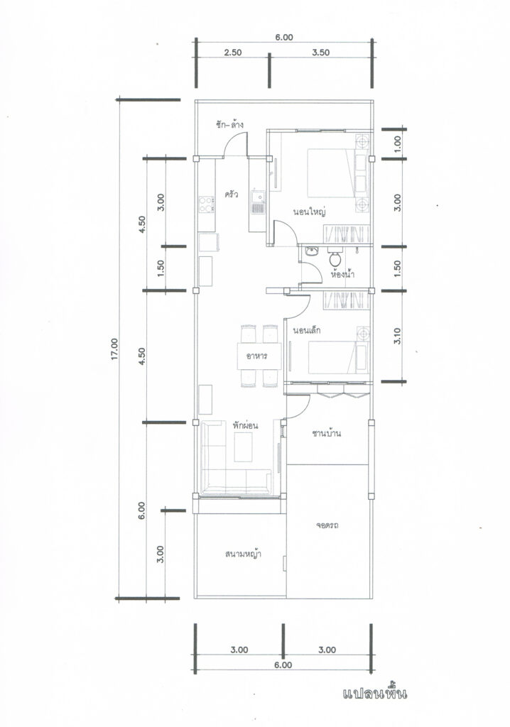
บ้านทาวน์โฮมชั้นเดียว
ANDAMAN 6 M
บ้านสไตล์โมเดิร์น เรียบง่าย การใช้โทนสี ที่ให้ความรู้สึกสงบ สบายตา อีกทั้งให้ดีไซน์รูปแบบบ้านทรงโมเดิร์น กะทัดรัด ปรับเข้ากันได้อย่างลงตัว
แบบบ้าน
- ขนาดที่ดิน: กว้าง 6.00 × ยาว 17.00 เมตร
- ขนาดบ้าน :กว้าง*ยาว 6.00*12.00 เมตร
- 2 ห้องนอน 1 ห้องน้ำ 1 ห้องรับแขก 1 ที่จอดรถ
จุดเด่น
- บ้านสวยมีเอกลักษณ์สไตล์โมเดิร์น
- อยู่ทำเลทองพื้นที่แยกอันดามัน
- ใกล้แหล่งอำนวยสะดวกต่างๆ ครบครัน
- น้ำไม่ท่วม
โครงสร้าง
- ฐานราก - ตอกเสาเข็ม
- เสาคาน - คอนกรีตเสริมเหล็ก
- เหล็กเส้น - SR24มาตรฐาน
- ผนัง – ก่ออิฐแดง
งานหลังคา
- หลังคา - เมทัลชีท
- สีกันสนิม - ทีโอเอโฮมโค้ทหรือใกล้เคียง
- เหล็กโครงหลังคา - เหล็กรูปพรรณตามแบบ , เหล็กคาร์บอไนท์
- แปหลังคา - เหล็กรูปพรรณตามแบบ , เหล็กคาร์บอไนท์
โครงสร้าง
- เราเลือกใช้ระบบฐานราก - ตอกเสาเข็มคอนกรีตอัดแรงตามแบบ
- เสาคาน - คอนกรีตเสริมเหล็ก
- เหล็กเส้น - SR 24 มาตรฐาน
- พื้นชั้นล่างภายใน - วางแผ่นคอนกรีดอึด ใช้ตะแกรงเหล็ก wire mesh
- พื้นชั้นล่างซักล้าง - ใช้ตะแกรงเหล็ก WIRE MESH เทพื้นด้วยคอนกรีตถ่ายน้ำหนักลงพื้น
- พื้นชั้นล่างโรงจอดรถ - ใช้ตะแกรงเหล็ก WIRE MESH เทพื้นด้วยคอนกรีตถ่ายน้ำหนักลงพื้น
- พื้นห้องน้ำ - เทพื้นด้วยคอนกรีตและขัดหยาบรอปูพื้นผิว
- ผนัง - ก่อด้วยอิฐมอญ
จุดเด่น
- บ้านสวยมีเอกลักษณ์สไตล์โมเดิร์นยุโรปตะวันตก
- ใช้เทคโนโลยีใหม่มาประยุกต์ใช้กับแบบบ้านและวัสดุ
- ยืนหนึ่งเรื่องทำเล ใกล้สถานบริการต่างๆ
- หมดห่วงเรื่องน้ำท่วม
- เป็นโครงการใหม่ที่ทำเลดีที่สุดของโครงการในหมู่บ้านสวนรื่นรมย์
โครงสร้าง
- เราเลือกใช้ระบบฐานราก - ตอกเสาเข็ม
- เสาคาน - คอนกรีตเสริมเหล็ก
- เหล็กเส้น - SR24มาตรฐาน
- ผนัง – ก่ออิฐแดง
วัสดุปูพื้น
- ภายในชั้น 1 - แกรนิโต้ชนิดเงา 24 X 24
- ห้องครัว - แกรนิโต้ชนิดหยาบ 24 X 24
- โรงจอดรถ - กระเบื้องเซรามิค 16 X 16 นิ้ว
- ห้องครัว - แกรนิโต้ชนิดหยาบ 24 X 24
- ซักล้าง - กระเบื้องเซรามิค 16 X 16 นิ้ว
- ห้องน้ำ กระเบื้องเซรามิคขนาด 12 X 12
การเลือกใช้สี
- ภายนอก - ไอซีไอ ดูลักซ์อินสไปร์
- ภายใน - ไอซีไอ ซุปเปอร์โค้ท
- ฝ้าเพดาน - ไอซีไอโฮมแมท
- ทาวงกบ - ทีโอเอโฮมโค้ท
- ประตู - สีย้อมไม้ เบเยอร์
- เชิงชาย - ไอซีไอ ไฮโดเฟรช
บ้านทาวน์โฮมชั้นเดียว
ANDAMAN 4.2 M
บ้านสไตล์โมเดิร์น เรียบง่าย การใช้โทนสี ที่ให้ความรู้สึกสงบ สบายตา อีกทั้งให้ดีไซน์รูปแบบบ้านทรงโมเดิร์น กะทัดรัด ปรับเข้ากันได้อย่างลงตัว
แบบบ้าน
- ขนาดที่ดิน: กว้าง 4.20 × ยาว 18.00 เมตร
- ขนาดบ้าน :กว้าง*ยาว 4.20*12.00 เมตร
- 2 ห้องนอน 1 ห้องน้ำ 1 ห้องรับแขก 1 ที่จอดรถ
Previous
Next
จุดเด่น
- บ้านสวยมีเอกลักษณ์สไตล์โมเดิร์น
- อยู่ทำเลทองพื้นที่แยกอันดามัน
- ใกล้แหล่งอำนวยสะดวกต่างๆ ครบครัน
- น้ำไม่ท่วม
โครงสร้าง
- ฐานราก - ตอกเสาเข็ม
- เสาคาน - คอนกรีตเสริมเหล็ก
- เหล็กเส้น - SR24มาตรฐาน
- ผนัง – ก่ออิฐแดง
งานหลังคา
- หลังคา - เมทัลชีท
- สีกันสนิม - ทีโอเอโฮมโค๊ทหรือใกล้เคียง
- เหล็กโครงหลังคา - เหล็กรูปพรรณตามแบบ , เหล็กคาร์บอไนท์
- แปหลังคา - เหล็กรูปพรรณตามแบบ , เหล็กคาร์บอไนท์
วัสดุปูพื้น
- ภายในชั้น 1 - แกรนิโต้ชนิดเงา 24 X 24
- ห้องครัว - แกรนิโต้ชนิดหยาบ 24 X 24
- โรงจอดรถ - กระเบื้องเซรามิค 16 X 16 นิ้ว
- ห้องครัว - แกรนิโต้ชนิดหยาบ 24 X 24
- ซักล้าง - กระเบื้องเซรามิค 16 X 16 นิ้ว
- ห้องน้ำ กระเบื้องเซรามิคขนาด 12 X 12
การเลือกใช้สี
- ภายนอก - ไอซีไอ ดูลักซ์อินสไปร์
- ภายใน - ไอซีไอ ซุปเปอร์โค๊ท
- ฝ้าเพดาน - ไอซีไอโฮมแมท
- ทาวงกบ - ทีโอเอโฮมโค๊ท
- ประตู - สีย้อมไม้ เบเยอร์
- เชิงชาย - ไอซีไอ ไฮโดเฟรช